Đăng ký mua
Giờ làm việc: 8h -> 22h
100.000₫
Thông tin bị ẩn
Ưu đãi đặc biệt
CHẤT LƯỢNG VƯỢT TRỘI
Đồ nội thất nhập khẩu độc quyền và sản xuất đạt tiêu chuẩn xuất Âu
GIÁ CẢ TỐT NHẤT
Nhà máy sản xuất trong nước rộng 10,000m2 đặt tại Bình Dương và xưởng đối tác nước ngoài rộng 40,000m2 chuyên sản xuất hàng xuất khẩu Mỹ, nên giá thành đảm bảo thấp hơn thị trường 20%
THƯƠNG HIỆU UY TÍN
Chính sách bảo hành đảm bảo tối đa quyền lợi khách hàng, sẵn sàng lắng nghe và phục vụ 24/7
57/16 Hoàng Cầu, Hà Nội
C27-10 Geleximco Lê Trọng Tấn, Hà Đông, Hà Nội
Chi tiết sản phẩm
Một bản vẽ thiết kế nhà không chỉ là những đường nét kỹ thuật trên giấy, mà là "linh hồn", là kim chỉ nam cho toàn bộ quá trình xây dựng, đảm bảo công trình được thi công chính xác, an toàn, thẩm mỹ và đúng với mong muốn của gia chủ.
Một bộ hồ sơ thiết kế nhà đầy đủ thường bao gồm ba phần chính: thiết kế kiến trúc bố trí mặt bằng, công năng, thiết kế kết cấu khung, móng, dầm, sàn và thiết kế hệ thống cơ điện M&E điện, nước, điều hòa.
Việc hiểu và đọc được bản vẽ cơ bản sẽ giúp chủ nhà chủ động hơn trong việc giám sát thi công, trao đổi hiệu quả với kiến trúc sư và nhà thầu, tránh được những sai sót tốn kém không đáng có.
Chi phí cho một bản thiết kế nhà dao động tùy thuộc vào diện tích, độ phức tạp và phong cách kiến trúc, với mức giá phổ biến từ 200.000 - 600.000 VNĐ/m². Phê Decor là đơn vị uy tín hàng đầu, cung cấp dịch vụ thiết kế chuyên nghiệp với chi phí tối ưu.
Bài viết dưới đây sẽ giúp bạn hiểu rõ tầm quan trọng của bản vẽ thiết kế trong mọi công trình.
Bản thiết kế nhà là cơ sở quan trọng nhất để đảm bảo ngôi nhà được xây đúng ý, đúng kỹ thuật, đúng ngân sách và đúng tiến độ. Đây là bước không thể bỏ qua nếu bạn muốn quá trình thi công diễn ra suôn sẻ, hạn chế tối đa rủi ro và phát sinh.
Lợi ích không thể phủ nhận của một bản vẽ chuyên nghiệp:
Nói đơn giản: không có bản thiết kế, bạn đang xây nhà trong mơ hồ và rủi ro. Một sai lầm nhỏ trong bố trí công năng hay kết cấu có thể khiến bạn trả giá bằng hàng chục triệu – thậm chí phải đập bỏ và làm lại từ đầu.,

Một bộ hồ sơ thiết kế hoàn chỉnh không chỉ là vài bản vẽ mặt bằng như nhiều người vẫn nghĩ. Thực tế, đó là tập tài liệu kỹ thuật tổng hợp, được các kiến trúc sư, kỹ sư xây dựng, kết cấu và ME phối hợp chặt chẽ để triển khai. Hồ sơ này là “bản đồ xây nhà” bao gồm hồ sơ thiết kế kiến trúc, hồ sơ thiết kế kết cấu, hồ sơ thiết kế hệ thống điện và là tài liệu bắt buộc để thi công chính xác, đồng bộ và đúng tiến độ.
Thông thường, một bộ hồ sơ đầy đủ sẽ bao gồm 3 phần chính:
Đây là phần thể hiện "hình hài" và công năng của ngôi nhà.
Đây là phần "xương sống", đảm bảo sự vững chãi cho ngôi nhà.
Đây là phần "mạch máu", đảm bảo sự vận hành tiện nghi cho ngôi nhà.
Chia sẻ từ Kỹ sư xây dựng Trần Bảo Nam: "Chủ nhà thường chỉ quan tâm đến bản vẽ kiến trúc mà xem nhẹ phần kết cấu và M&E. Đây là một sai lầm lớn. Một ngôi nhà đẹp mà kết cấu yếu hoặc hệ thống điện nước trục trặc thì không thể gọi là một công trình thành công. Một bộ hồ sơ đầy đủ cả 3 phần mới là một bản vẽ chất lượng."

Bạn không cần phải là kiến trúc sư hay kỹ sư xây dựng mới hiểu được bản vẽ thiết kế ngôi nhà của chính mình. Chỉ cần nắm một số nguyên tắc cơ bản, bạn đã có thể đọc – hiểu – kiểm tra và trao đổi hiệu quả với đội ngũ thiết kế hoặc thi công.
Dưới đây là những phần quan trọng nhất cần chú ý:
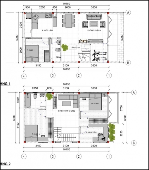
Là bản vẽ nhìn từ trên xuống, thể hiện cách bố trí các phòng, hành lang, cầu thang, cửa ra vào… trên từng tầng.
Thường ghi rõ các kích thước dài x rộng, ký hiệu cửa, tường, đồ nội thất cơ bản.
Hãy chú ý:
Thành phần | Ký hiệu phổ biến | Ý nghĩa |
|---|---|---|
| Tường | Hai đường song song, tường dày hơn là tường chịu lực | Phân chia không gian |
| Cửa đi | Đường cong thể hiện góc mở của cửa | Hướng mở phải hợp lý |
| Cửa sổ | Hai nét song song nhỏ, có ký hiệu kính | Vị trí thông gió, ánh sáng |
| Cầu thang | Dạng mũi tên hoặc nét răng cưa | Thể hiện hướng đi lên |
| Đường dim | Các đường mảnh có số đo | Biểu thị kích thước thực (đơn vị thường là mm) |
Hãy đặt mặt bằng – mặt đứng – mặt cắt cạnh nhau để hình dung không gian 3D:

Việc lựa chọn một đơn vị thiết kế uy tín là bước đi quan trọng nhất. Phê Decor tự hào là một trong những công ty nội thất uy tín hàng đầu tại Hà Nội, cung cấp dịch vụ thiết kế và thi công nội thất trọn gói, kiến tạo nên những không gian sống đẳng cấp và khác biệt.
Tại sao nên chọn Phê Decor?
Đánh giá từ anh Quang Minh Chủ nhà phố tại Hà Đông, Hà Nội: "Trước khi xây nhà tôi rất lo lắng, nhưng từ khi làm việc với Phê Decor thì mọi thứ trở nên dễ dàng hơn hẳn. Các bạn KTS rất nhiệt tình, bản vẽ 3D cực kỳ chi tiết và chân thực. Đến khi thi công xong thì công trình giống đến 99% so với thiết kế. Rất cảm ơn Phê Decor."

Chi phí thiết kế nhà phụ thuộc vào nhiều yếu tố: diện tích, loại hình công trình nhà phố, biệt thự, phong cách thiết kế và phạm vi hồ sơ.
Loại Hình Công Trình | Phong Cách Thiết Kế | Đơn Giá Tham Khảo (VNĐ/m²) | Ghi Chú |
|---|---|---|---|
| Nhà phố | Hiện đại, Tối giản | 200.000 - 300.000 | Bao gồm hồ sơ kiến trúc, kết cấu, M&E. |
| Nhà phố | Tân cổ điển, Indochine | 280.000 - 400.000 | Yêu cầu chi tiết hoa văn, phào chỉ phức tạp hơn. |
| Biệt thự | Hiện đại, Tối giản | 250.000 - 380.000 | Diện tích lớn, yêu cầu cao về không gian mở, cảnh quan. |
| Biệt thự | Tân cổ điển, Cổ điển | 350.000 - 600.000+ | Yêu cầu cao nhất về sự tinh xảo, chi tiết kiến trúc. |
Lưu ý: Đơn giá trên chỉ mang tính tham khảo. Phê Decor thường có chính sách ưu đãi hoặc miễn phí thiết kế khi khách hàng ký hợp đồng thi công trọn gói.
Một bản vẽ thiết kế nhà chuyên nghiệp không phải là một khoản chi phí, mà là một khoản đầu tư thông minh và cần thiết cho tương lai. Nó là sự đảm bảo cho một không gian sống an toàn, tiện nghi, thẩm mỹ và bền vững. Bằng cách hiểu rõ tầm quan trọng, các thành phần của một bộ hồ sơ và lựa chọn một đơn vị thiết kế uy tín như Phê Decor, bạn đã đặt những viên gạch đầu tiên vững chắc nhất cho ngôi nhà mơ ước của mình.
Để nhận được sự tư vấn chuyên nghiệp và báo giá chi tiết cho dự án của mình, hãy liên hệ ngay với chúng tôi. Đội ngũ của Phê Decor luôn sẵn sàng lắng nghe và đồng hành cùng bạn.
100.000₫
Sản phẩm liên quan
Sản phẩm giảm giá
Lên đầu trang
Giỏ hàng
Tìm kiếm
Đường dây nóng
Giỏ hàng
Bạn chưa có sản phẩm nào trong giỏ hàng
Nếu bạn có thắc mắc cần giải đáp hoặc hỗ trợ về sản phẩm, hãy nhấc máy ngay và gọi đến số
0988786086 Chú ý: Chúng tôi chỉ hỗ trợ từ 8h đến 17h30, ngoài giờ hành chính vui lòng không liên lạc
Thành công, Zidio sẽ liên hệ với bạn sớm nhất!
Có lỗi, vui lòng thử lại sau!!!